首页
公司简介
产品展示
电动润滑泵
手(脚)动润滑泵
加油泵
双线分配器
单线分配器
换向阀、操纵阀及其附件
稀油润滑装置及稀油站
稀油润滑元件
管件部分
油气润滑元件
新闻中心
产品目录
荣誉资质
联系我们
电子邮局
产品导航
电动润滑泵
手(脚)动润滑泵
加油泵
双线分配器
单线分配器
换向阀、操纵阀及其附件
稀油润滑装置及稀油站
稀油润滑元件
管件部分
油气润滑元件
XYHZ型稀油润滑装置(0.5MPa)
<<
上一页
下一页
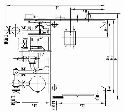
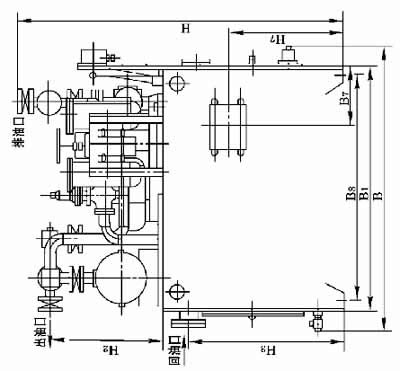
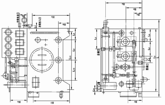
四、电控箱外形尺寸
图5 XYHZ6.3~XYHZ200装置电控箱 图6 XYHZ250~XYHZ800装置电控箱
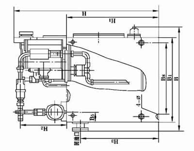
五、装置外形尺寸
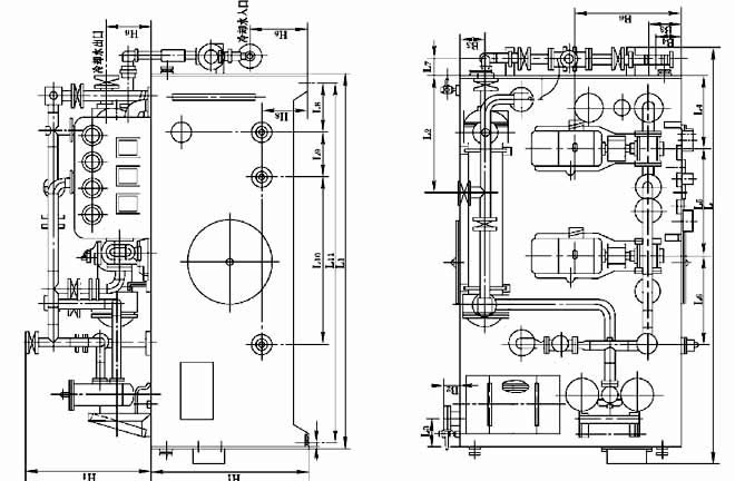
1.XYHZ6.3~XYHZ25的装置形式与尺寸见图7和表3;
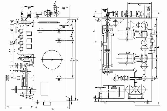
2.XYHZ40~XYHZ125的装置形式与尺寸见图8和表4;
3.XYHZ160~XYHZ800的装置形式与尺寸见图9和表5;
4.图7、8、9中进出口法兰尺寸见图10和表6、7;
图7 XYHZ6.3~XYHZ25装置
图8 XYHZ40~XYHZ125装置
图9 XYHZ160~XYHZ800装置
<<
上一页
下一页