SGZ-4/8F型手动润滑泵(10MPa)

一、概 述
SRB-J7-4/4型手动干油泵适用于双线式干油集中润滑系统中,通过给油器向各润滑点供送润滑脂的手动润滑泵。
SRB-J7-4/4型手动润滑泵允许在0~40℃的环境温度下工作,采用润滑脂的针入度不低于265(25℃,150g)1/10mm。
二、形式、参数和尺寸
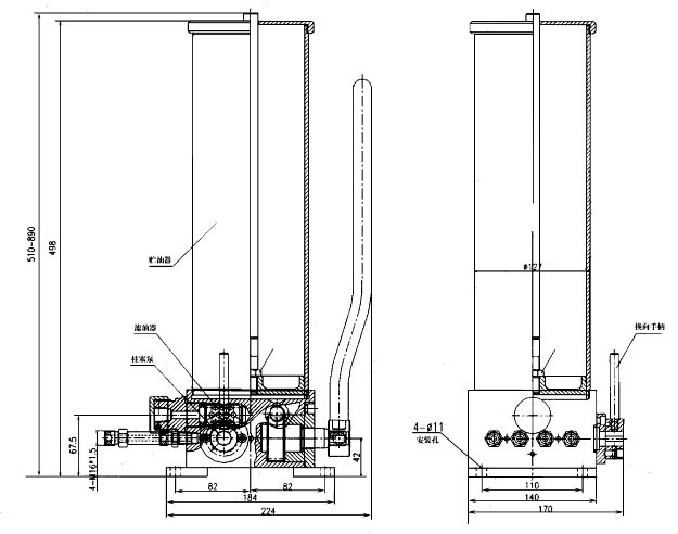
1、形式:SRB-J7-4/4型手动润滑泵为带有油位指示杆的手动柱塞式润滑泵。
2、基本参数和外形尺寸:


 
型号
公称压力Mpa
给油量ml/循环
给油品数
贮油筒体积L
重量Kg
SRB-J7-4/4
10
7
4
4
4
注;表中公称压力指润滑泵单行程中,由零增加到表中规定值的压力,最高可达21MPa。
 
三、工作原理                    
SRB-J7-4/4型手动润滑泵主要有贮油器、柱塞泵、单向阀、滤油器等主要部分构成。
其工作原理是:板动手柄,通过齿轮轴上的小齿轮(如图2)带动齿条活塞作往返复运动。当活塞处于右端极限位置左行量,润滑脂通过单向阀经过换向阀被压入主油管,当滑动活塞行程终了,到达左端极度限位置时,滑动活塞右端的腔室又被贮油器中有润滑脂所充满。当滑动活塞再向右移动时 ,滑动活塞右端的单向阀,经换向阀而被压入主油管,这样继续扳动手柄,油泵将不断地往复运动,把润滑脂不断地压向各组给油器。
油泵给油的换向是通过手动操作换向手柄来达到目的,当换向手柄转动到一个定位孔时,润滑脂将主油管II供送润滑脂,当把换向手柄转动到另一个定人位孔时,润滑脂经主油管I供送润滑脂。任一状态时另一主油管I,II分别卸荷与贮油器连通。


四、安装及调试
安装:
1、SRB-J7-4/4型手动润滑泵应安装在以通风、透光的室内,露天安装使用必须加设防护罩,同时必须保证手柄能自由摆动。油位指示杆上方应有足够的空间,以便油位指示杆能伸出,还能方便地向贮油器中加油润滑脂。
2、SRB-J7-4/4型手动润滑泵必须直立安装,并用四只M10×30螺栓紧固。
3、泵与主油管及系统中配管的连接处应紧密,不得有渗漏现象,不允许使用麻丝或铅油等辅助材料。
调试:
1、加润滑脂必须从加油过滤器装置中用专用的加油 泵注入,严禁揭盖加油,防止油中油脏物或空气混合,致使泵不能正常工作。加入润滑脂的针入度为不低于265(25℃,150g)1/10mm。
2、起动前,应向压力表接头内注50#机械油,以便干油进入压力表而影响显示精度。
3、当手柄来回扳动,这时润滑脂将被入主油管中,系统中的给油器全部工作后压力上升,应停止供油,同时要及时换向,以便消除管路中油压力。

五、使用及注意事项

使用:
1 润滑脂必须从加油口用专用加油泵向贮油器中加入,并观察油位指示杆上的刻度线,即可知道加满与否。
2、连接供油管,采用GB9065.3胶管接头8I与系统中管路连接。
3、应保持润滑泵的清洁,防止酸、碱等物的腐蚀。
注意事项:
1、加油过滤器的滤芯应定期清洗。
2、柱塞泵的活塞与泵体内孔的配合间隙极小,必须严格控制脏物进入,以免影响正常工作。
3、贮油桶内油位下降至下位时应及时加注,不得再扳动手柄以便空气进入管路影响润滑效果。

六、故障原因及排除
润滑泵使用不当时,会出现压力不上升或压力急剧上升的现象。
1、压力不上升,主要是由于泵内含有空气或泵内单向阀失灵,以及配管连接处有泄漏造成,查明原因后消除,即可恢复正常。
2、压力急剧上升凡要是由于管道堵塞或分配器动作不良以及换向阀没有换向造成,查明原因后排除之,即可正常工作。